Sta. Coloma de Gramenet Residencial Santa Coloma
Avinguda Puig Castellar 5-7, LO 03
categoria
  • Superficie construida 70,00m2
    Superficie construida

800,00 €/mes

* Sup. Construida Aprox. Superficie útil 70,00 m2

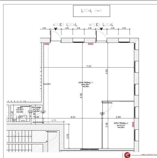
Oficina en planta baja, moderna y luminosa, lista para entrar como oficina. Fachada con ventanales a pie de calle y acceso directo. 

Distribución y características: Sala principal diáfana apta para varios puestos de trabajo. Despacho / sala de reuniones acristalada. Zona de recepción. Aseo completo. Archivo y módulos de almacenamiento. Equipamiento Climatización por split. Iluminación empotrada y estores en fachada. Carpintería de aluminio y vidrio en sala de reuniones. Suelo cerámico de alta resistencia. Ubicación Entorno empresarial consolidado, con amplias zonas peatonales frente al local. 

Buenas comunicaciones con Barcelona y transporte público cercano. 

Condiciones Disponibilidad inmediata. Idóneo para todo tipo de comercios, oficinas técnicas, despachos profesionales, empresas de servicios, atención al público con cita, etc. IVA no incluido. ¿Te encaja? Solicita información y visita sin compromiso.

Nota:
Las fotografías y los planos son representativos de las diversas tipologías y pueden presentar diferencias respecto a la realidad. El mobiliario puede ser decorativo, consulte a nuestros gestores. Precios y textos válidos salvo error.
En caso de ser aplicable el Índice de Habitatge, está calculado en base al art. 7.4 de la Ley 11/2020, de 18 de septiembre.

Sta. Coloma de Gramenet Residencial Santa Coloma Avinguda Puig Castellar 5-7, LO 03

categoria
  • Superficie construida 70,00m2
    Superficie construida
  • Habitaciones 0
    Habitaciones
  • Baños 0
    Baños
  • Adaptado a personas con movilidad reducida
    Adaptado a personas con movilidad reducida
  • Piso flexible
    Piso flexible
  • Índice de alquiler
    Índice de alquiler

800,00 €/mes

* Sup. Construida Aprox. Superficie útil 70,00 m2

Oficina en planta baja, moderna y luminosa, lista para entrar como oficina. Fachada con ventanales a pie de calle y acceso directo. 

Distribución y características: Sala principal diáfana apta para varios puestos de trabajo. Despacho / sala de reuniones acristalada. Zona de recepción. Aseo completo. Archivo y módulos de almacenamiento. Equipamiento Climatización por split. Iluminación empotrada y estores en fachada. Carpintería de aluminio y vidrio en sala de reuniones. Suelo cerámico de alta resistencia. Ubicación Entorno empresarial consolidado, con amplias zonas peatonales frente al local. 

Buenas comunicaciones con Barcelona y transporte público cercano. 

Condiciones Disponibilidad inmediata. Idóneo para todo tipo de comercios, oficinas técnicas, despachos profesionales, empresas de servicios, atención al público con cita, etc. IVA no incluido. ¿Te encaja? Solicita información y visita sin compromiso.

Nota:
Las fotografías y los planos son representativos de las diversas tipologías y pueden presentar diferencias respecto a la realidad. El mobiliario puede ser decorativo, consulte a nuestros gestores. Precios y textos válidos salvo error.
En caso de ser aplicable el Índice de Habitatge, está calculado en base al art. 7.4 de la Ley 11/2020, de 18 de septiembre.

Reservar

Me gustaría recibir información de este inmueble

Compartir